1987 Robertson (D01-01-21-0021)

1987 Robertson (D01-01-21-0021) #

Summary #

Application StatusActive
Review StatusOMB Package Sent
DescriptionThe City of Ottawa has received an Official Plan and Zoning By-law Amendment application to establish a Secondary Plan for a mixed-use development of up to 20-storeys, building setbacks, minimum and maximum parking, bicycle and landscaping requirements.
WardWard 8 - Laine Johnson
Date Initiated2021-10-13
Last Updated2025-10-21

Renders #

  • Rendering of building from page 18 of the file '2021-11-24 - Applicant UDRP Presentation - D01-01-21-0021'
  • Rendering of building from page 35 of the file '2021-11-24 - Applicant UDRP Presentation - D01-01-21-0021'
  • Rendering of building from page 18 of the file '2021-11-24 - Applicant UDRP Presentation - D01-01-21-0021'
  • Rendering of building from page 18 of the file '2021-11-24 - Applicant UDRP Presentation - D01-01-21-0021'
  • Rendering of building from page 35 of the file '2021-11-24 - Applicant UDRP Presentation - D01-01-21-0021'
  • Rendering of building from page 17 of the file '2021-11-24 - Applicant UDRP Presentation - D01-01-21-0021'
  • Rendering of building from page 30 of the file '2021-11-24 - Applicant UDRP Presentation - D01-01-21-0021'
  • Rendering of building from page 29 of the file '2021-11-24 - Applicant UDRP Presentation - D01-01-21-0021'
  • Rendering of building from page 1 of the file '2021-11-24 - Applicant UDRP Presentation - D01-01-21-0021'
  • Rendering of building from page 18 of the file '2021-11-24 - Applicant UDRP Presentation - D01-01-21-0021'
  • Rendering of building from page 35 of the file '2021-11-24 - Applicant UDRP Presentation - D01-01-21-0021'
  • Rendering of building from page 18 of the file '2021-11-24 - Applicant UDRP Presentation - D01-01-21-0021'
  • Rendering of building from page 18 of the file '2021-11-24 - Applicant UDRP Presentation - D01-01-21-0021'
  • Rendering of building from page 35 of the file '2021-11-24 - Applicant UDRP Presentation - D01-01-21-0021'
  • Rendering of building from page 17 of the file '2021-11-24 - Applicant UDRP Presentation - D01-01-21-0021'
  • Rendering of building from page 30 of the file '2021-11-24 - Applicant UDRP Presentation - D01-01-21-0021'
  • Rendering of building from page 29 of the file '2021-11-24 - Applicant UDRP Presentation - D01-01-21-0021'
  • Rendering of building from page 1 of the file '2021-11-24 - Applicant UDRP Presentation - D01-01-21-0021'

Site and Floor Plans #

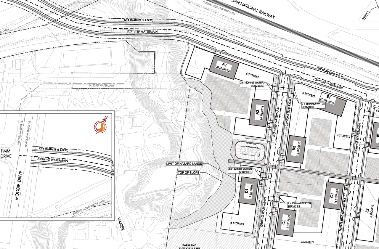
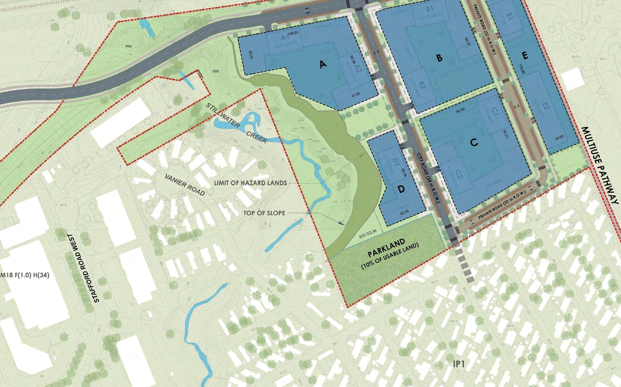
  • Construction site plan for project from page 3 of the file '2021-11-24 - Applicant UDRP Presentation - D01-01-21-0021'
  • Construction site plan for project from page 4 of the file '2021-11-24 - Applicant UDRP Presentation - D01-01-21-0021'
  • Construction site plan for project from page 7 of the file '2021-11-24 - Applicant UDRP Presentation - D01-01-21-0021'
  • Construction site plan for project from page 8 of the file '2021-11-24 - Applicant UDRP Presentation - D01-01-21-0021'
  • Construction site plan for project from page 9 of the file '2021-11-24 - Applicant UDRP Presentation - D01-01-21-0021'
  • Construction site plan for project from page 10 of the file '2021-11-24 - Applicant UDRP Presentation - D01-01-21-0021'
  • Construction site plan for project from page 11 of the file '2021-11-24 - Applicant UDRP Presentation - D01-01-21-0021'
  • Construction site plan for project from page 12 of the file '2021-11-24 - Applicant UDRP Presentation - D01-01-21-0021'
  • Construction site plan for project from page 13 of the file '2021-11-24 - Applicant UDRP Presentation - D01-01-21-0021'
  • Construction site plan for project from page 14 of the file '2021-11-24 - Applicant UDRP Presentation - D01-01-21-0021'
  • Construction site plan for project from page 15 of the file '2021-11-24 - Applicant UDRP Presentation - D01-01-21-0021'
  • Construction site plan for project from page 19 of the file '2021-11-24 - Applicant UDRP Presentation - D01-01-21-0021'
  • Construction site plan for project from page 20 of the file '2021-11-24 - Applicant UDRP Presentation - D01-01-21-0021'
  • Construction site plan for project from page 21 of the file '2021-11-24 - Applicant UDRP Presentation - D01-01-21-0021'
  • Construction site plan for project from page 22 of the file '2021-11-24 - Applicant UDRP Presentation - D01-01-21-0021'
  • Construction site plan for project from page 23 of the file '2021-11-24 - Applicant UDRP Presentation - D01-01-21-0021'
  • Construction site plan for project from page 24 of the file '2021-11-24 - Applicant UDRP Presentation - D01-01-21-0021'
  • Construction site plan for project from page 25 of the file '2021-11-24 - Applicant UDRP Presentation - D01-01-21-0021'
  • Construction site plan for project from page 31 of the file '2021-11-24 - Applicant UDRP Presentation - D01-01-21-0021'
  • Construction site plan for project from page 32 of the file '2021-11-24 - Applicant UDRP Presentation - D01-01-21-0021'
  • Construction site plan for project from page 32 of the file '2021-11-24 - Applicant UDRP Presentation - D01-01-21-0021'
  • Construction site plan for project from page 32 of the file '2021-11-24 - Applicant UDRP Presentation - D01-01-21-0021'
  • Construction site plan for project from page 32 of the file '2021-11-24 - Applicant UDRP Presentation - D01-01-21-0021'
  • Construction site plan for project from page 32 of the file '2021-11-24 - Applicant UDRP Presentation - D01-01-21-0021'
  • Construction site plan for project from page 33 of the file '2021-11-24 - Applicant UDRP Presentation - D01-01-21-0021'
  • Construction site plan for project from page 33 of the file '2021-11-24 - Applicant UDRP Presentation - D01-01-21-0021'
  • Construction site plan for project from page 33 of the file '2021-11-24 - Applicant UDRP Presentation - D01-01-21-0021'
  • Construction site plan for project from page 33 of the file '2021-11-24 - Applicant UDRP Presentation - D01-01-21-0021'
  • Construction site plan for project from page 33 of the file '2021-11-24 - Applicant UDRP Presentation - D01-01-21-0021'
  • Construction site plan for project from page 33 of the file '2021-11-24 - Applicant UDRP Presentation - D01-01-21-0021'
  • Construction site plan for project from page 33 of the file '2021-11-24 - Applicant UDRP Presentation - D01-01-21-0021'
  • Construction site plan for project from page 34 of the file '2021-11-24 - Applicant UDRP Presentation - D01-01-21-0021'
  • Construction site plan for project from page 34 of the file '2021-11-24 - Applicant UDRP Presentation - D01-01-21-0021'
  • Construction site plan for project from page 34 of the file '2021-11-24 - Applicant UDRP Presentation - D01-01-21-0021'
  • Construction site plan for project from page 34 of the file '2021-11-24 - Applicant UDRP Presentation - D01-01-21-0021'
  • Construction site plan for project from page 34 of the file '2021-11-24 - Applicant UDRP Presentation - D01-01-21-0021'
  • Construction site plan for project from page 34 of the file '2021-11-24 - Applicant UDRP Presentation - D01-01-21-0021'
  • Construction site plan for project from page 34 of the file '2021-11-24 - Applicant UDRP Presentation - D01-01-21-0021'
  • Construction site plan for project from page 35 of the file '2021-11-24 - Applicant UDRP Presentation - D01-01-21-0021'
  • Construction site plan for project from page 35 of the file '2021-11-24 - Applicant UDRP Presentation - D01-01-21-0021'
  • Construction site plan for project from page 35 of the file '2021-11-24 - Applicant UDRP Presentation - D01-01-21-0021'
  • Construction site plan for project from page 36 of the file '2021-11-24 - Applicant UDRP Presentation - D01-01-21-0021'
  • Construction site plan for project from page 37 of the file '2021-11-24 - Applicant UDRP Presentation - D01-01-21-0021'
  • Construction site plan for project from page 38 of the file '2021-11-24 - Applicant UDRP Presentation - D01-01-21-0021'
  • Construction site plan for project from page 3 of the file '2021-11-24 - Applicant UDRP Presentation - D01-01-21-0021'
  • Construction site plan for project from page 4 of the file '2021-11-24 - Applicant UDRP Presentation - D01-01-21-0021'
  • Construction site plan for project from page 7 of the file '2021-11-24 - Applicant UDRP Presentation - D01-01-21-0021'
  • Construction site plan for project from page 8 of the file '2021-11-24 - Applicant UDRP Presentation - D01-01-21-0021'
  • Construction site plan for project from page 9 of the file '2021-11-24 - Applicant UDRP Presentation - D01-01-21-0021'
  • Construction site plan for project from page 10 of the file '2021-11-24 - Applicant UDRP Presentation - D01-01-21-0021'
  • Construction site plan for project from page 11 of the file '2021-11-24 - Applicant UDRP Presentation - D01-01-21-0021'
  • Construction site plan for project from page 12 of the file '2021-11-24 - Applicant UDRP Presentation - D01-01-21-0021'
  • Construction site plan for project from page 13 of the file '2021-11-24 - Applicant UDRP Presentation - D01-01-21-0021'
  • Construction site plan for project from page 14 of the file '2021-11-24 - Applicant UDRP Presentation - D01-01-21-0021'
  • Construction site plan for project from page 15 of the file '2021-11-24 - Applicant UDRP Presentation - D01-01-21-0021'
  • Construction site plan for project from page 19 of the file '2021-11-24 - Applicant UDRP Presentation - D01-01-21-0021'
  • Construction site plan for project from page 20 of the file '2021-11-24 - Applicant UDRP Presentation - D01-01-21-0021'
  • Construction site plan for project from page 21 of the file '2021-11-24 - Applicant UDRP Presentation - D01-01-21-0021'
  • Construction site plan for project from page 22 of the file '2021-11-24 - Applicant UDRP Presentation - D01-01-21-0021'
  • Construction site plan for project from page 23 of the file '2021-11-24 - Applicant UDRP Presentation - D01-01-21-0021'
  • Construction site plan for project from page 24 of the file '2021-11-24 - Applicant UDRP Presentation - D01-01-21-0021'
  • Construction site plan for project from page 25 of the file '2021-11-24 - Applicant UDRP Presentation - D01-01-21-0021'
  • Construction site plan for project from page 31 of the file '2021-11-24 - Applicant UDRP Presentation - D01-01-21-0021'
  • Construction site plan for project from page 32 of the file '2021-11-24 - Applicant UDRP Presentation - D01-01-21-0021'
  • Construction site plan for project from page 32 of the file '2021-11-24 - Applicant UDRP Presentation - D01-01-21-0021'
  • Construction site plan for project from page 32 of the file '2021-11-24 - Applicant UDRP Presentation - D01-01-21-0021'
  • Construction site plan for project from page 32 of the file '2021-11-24 - Applicant UDRP Presentation - D01-01-21-0021'
  • Construction site plan for project from page 32 of the file '2021-11-24 - Applicant UDRP Presentation - D01-01-21-0021'
  • Construction site plan for project from page 33 of the file '2021-11-24 - Applicant UDRP Presentation - D01-01-21-0021'
  • Construction site plan for project from page 33 of the file '2021-11-24 - Applicant UDRP Presentation - D01-01-21-0021'
  • Construction site plan for project from page 33 of the file '2021-11-24 - Applicant UDRP Presentation - D01-01-21-0021'
  • Construction site plan for project from page 33 of the file '2021-11-24 - Applicant UDRP Presentation - D01-01-21-0021'
  • Construction site plan for project from page 33 of the file '2021-11-24 - Applicant UDRP Presentation - D01-01-21-0021'
  • Construction site plan for project from page 33 of the file '2021-11-24 - Applicant UDRP Presentation - D01-01-21-0021'
  • Construction site plan for project from page 33 of the file '2021-11-24 - Applicant UDRP Presentation - D01-01-21-0021'
  • Construction site plan for project from page 34 of the file '2021-11-24 - Applicant UDRP Presentation - D01-01-21-0021'
  • Construction site plan for project from page 34 of the file '2021-11-24 - Applicant UDRP Presentation - D01-01-21-0021'
  • Construction site plan for project from page 34 of the file '2021-11-24 - Applicant UDRP Presentation - D01-01-21-0021'
  • Construction site plan for project from page 34 of the file '2021-11-24 - Applicant UDRP Presentation - D01-01-21-0021'
  • Construction site plan for project from page 34 of the file '2021-11-24 - Applicant UDRP Presentation - D01-01-21-0021'
  • Construction site plan for project from page 34 of the file '2021-11-24 - Applicant UDRP Presentation - D01-01-21-0021'
  • Construction site plan for project from page 34 of the file '2021-11-24 - Applicant UDRP Presentation - D01-01-21-0021'
  • Construction site plan for project from page 35 of the file '2021-11-24 - Applicant UDRP Presentation - D01-01-21-0021'
  • Construction site plan for project from page 35 of the file '2021-11-24 - Applicant UDRP Presentation - D01-01-21-0021'
  • Construction site plan for project from page 35 of the file '2021-11-24 - Applicant UDRP Presentation - D01-01-21-0021'
  • Construction site plan for project from page 36 of the file '2021-11-24 - Applicant UDRP Presentation - D01-01-21-0021'
  • Construction site plan for project from page 37 of the file '2021-11-24 - Applicant UDRP Presentation - D01-01-21-0021'
  • Construction site plan for project from page 38 of the file '2021-11-24 - Applicant UDRP Presentation - D01-01-21-0021'

Documents #

TypeDocument
Application Summary2021-10-26 - Application Summary - D01-01-21-0021
Architectural Plans2024-03-06 - MASTER PLAN - D01-01-21-0021
Architectural Plans2023-04-26 - Watermain Servicing Plan - D01-01-21-0021 and D02-02-21-0120
Architectural Plans2023-04-26 - SANITARY SEWER NETWORK AND DRAINAGE PLAN - D01-01-21-0021 and D02-02-21-0120
Architectural Plans2023-04-26 - Master Plan - - D01-01-21-0021 and D02-02-21-0120
Architectural Plans2023-04-26 - Secondary Plan - D01-01-21-0021 and D02-02-21-0120
Architectural Plans2022-04-04 - Conceptual Site Plan Package - D01-01-21-0021
Architectural Plans2021-10-13 - Site Plan Analysis 2 - D01-01-21-0021
Architectural Plans2021-10-13 - Site Plan Analysis - D01-01-21-0021
Architectural Plans2021-10-13 - Sanitary Sewer Network and Drainage Plan - D01-01-21-0021
Architectural Plans2021-10-13 - Master Plan - D01-01-21-0021
Design Brief2021-11-24 - Applicant UDRP Presentation - D01-01-21-0021
Environmental2024-03-06 - Environmental Impact Statement - D01-01-21-0021
Environmental2023-04-26 - Phase II Environmental Site Assessment - D01-01-21-0021 and D02-02-21-0120
Environmental2023-04-26 - Environmental Impact Statement - D01-01-21-0021 and D02-02-21-0120
Environmental2022-04-04 - Phase I Environmental Site Assessment - D01-01-21-0021
Environmental2021-10-13 - Phase 2 Environmental Site Assessment 2 - D01-01-21-0021
Environmental2021-10-13 - Phase 2 Environmental Site Assessment - D01-01-21-0021
Environmental2021-10-13 - Phase 1 Environmental Site Assessment - D01-01-21-0021
Environmental2021-10-13 - Environmental Impact Statement - D01-01-21-0021
Existing Conditions2024-03-06 - EXISTING STORM DRAINAGE PLAN - D01-01-21-0021
Existing Conditions2023-04-26 - EXISTING STORM DRAINAGE PLAN - D01-01-21-0021 and D02-02-21-0120
Geotechnical Report2024-03-06 - Grading Plan - D01-01-21-00212024-03-06 - Grading Plan - D01-01-21-0021
Geotechnical Report2024-03-06 - Geotechnical Investigation - D01-01-21-0021
Geotechnical Report2023-04-26 - Grading Plan - D01-01-21-0021 and D02-02-21-0120
Geotechnical Report2023-04-26 - Geotechnical Investigation - D01-01-21-0021 and D02-02-21-0120
Geotechnical Report2021-10-13 - Grading Plan - D01-01-21-0021
Geotechnical Report2021-10-13 - Geotechnical - D01-01-21-0021
Noise Study2021-10-13 - Noise Brief - D01-01-21-0021
Planning2023-07-06 - Planning Rationale Addendum - D01-01-21-0021
Planning2022-04-04 - Planning Rationale Addendum - D01-01-21-0021
Site Servicing2023-04-26 - Site Servicing & Stormwater Management Report - D01-01-21-0021 and D02-02-21-0120
Site Servicing2021-10-13 - Servicing Report - D01-01-21-0021
Stormwater Management2024-03-06 - STORM SEWER NETWORK AND DRAINAGE PLAN - D01-01-21-0021
Stormwater Management2024-03-06 - Functional Site Servicing and Stormwater Management Report - D01-01-21-0021
Stormwater Management2023-04-26 - Storm Sewer Network & Drainage Plan - D01-01-21-0021 and D02-02-21-0120
Stormwater Management2022-04-04 - Functional Site Servicing & Stormwater Management Report - D01-01-21-0021
Stormwater Management2021-10-13 - Storm Sewer and Drainage Plan - D01-01-21-0021
Stormwater Management2021-10-13 - Storm Drainage Plan - D01-01-21-0021
Surveying2023-04-26 - Topographic Survey - D01-01-21-0021 and D02-02-21-0120
Surveying2021-10–13 - Survey - D01-01-21-0021
Transportation Analysis2021-10-13 - Transportation Impact Assessment - D01-01-21-0021
Tree Information and Conservation2023-04-26 - TREE CONSERVATION REPORT - D01-01-21-0021 and D02-02-21-0120
Tree Information and Conservation2022-04-04 - Tree Conservation Report - D01-01-21-0021
Tree Information and Conservation2021-10-13 - Tree Conservation Report - D01-01-21-0021
2024-03-06 - Watermain Servicing - D01-01-21-0021
2024-03-06 - SANITARY SEWER NETWORK AND DRAINAGE SYSTEM - D01-01-21-0021
2024-03-06 - Phase 1 - Environmental Site Assessment - D01-01-21-0021
2024-03-06 - Area Specific Policy - D01-01-21-0021
2023-04-26 - Proposed Building Height Schedule - D01-01-21-0021 and D02-02-21-0120
2023-04-26 - PEDESTRIAN WIND COMFORT ASSESSMENT - D01-01-21-0021 and D02-02-21-0120
2023-04-26 - Bylaw 42-59 - D01-01-21-0021 and D02-02-21-0120
2022-04-04 - Preliminary Geotechnical Investigation - D01-01-21-0021
2021-10-13- Public Consultation Strategy - D01-01-21-0021
2021-10-13 - Watermain Servicing - D01-01-21-0021